︎
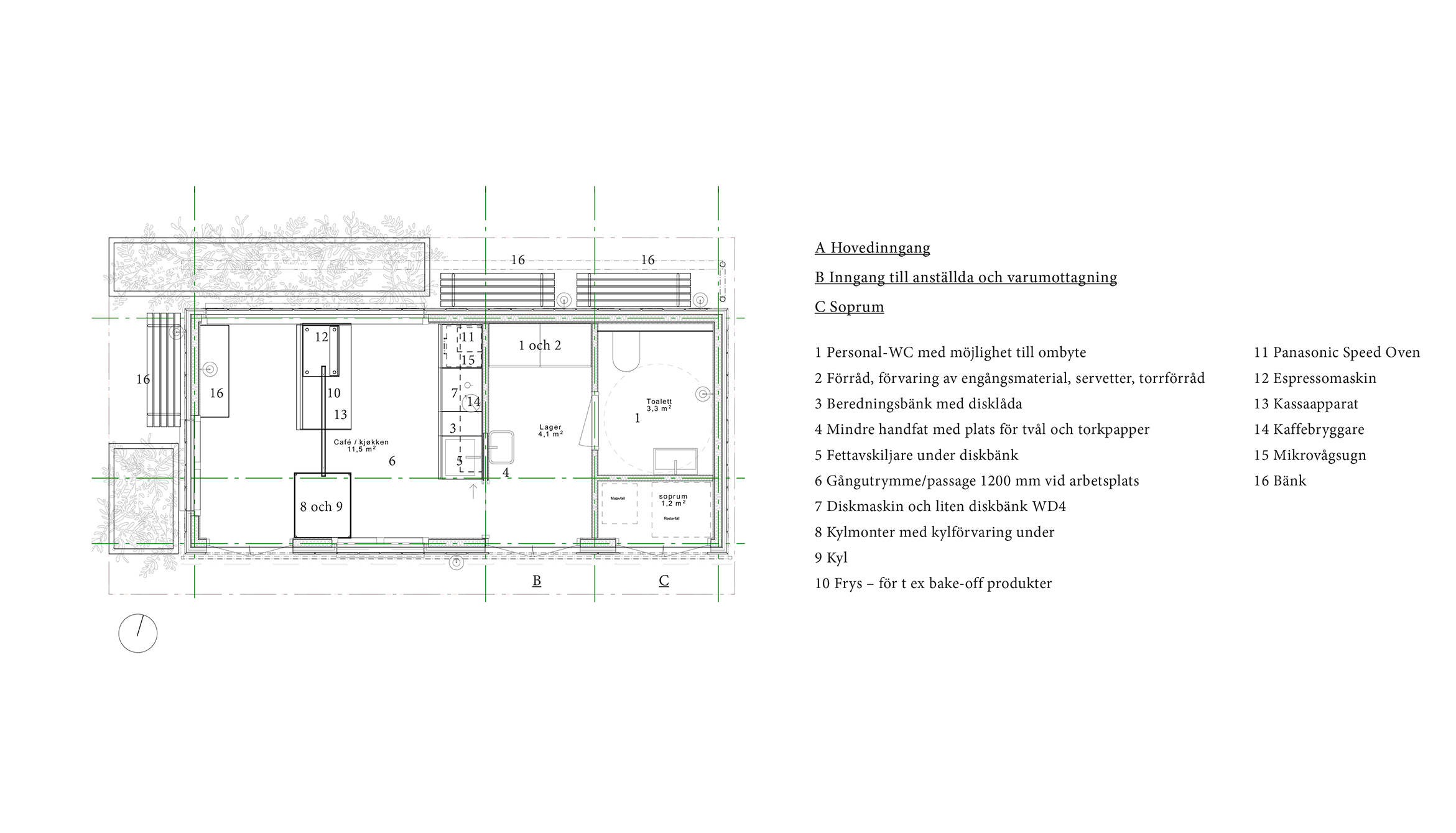
Ett litet trädgårdscafé i parken, Göteborg, Sverige, 2022
Proposal for open competition, Cafébyggnad i Brunnsparken
Young Eun Choi Arkitekt M.Arch choiyoungeun@me.com +47 464 42 360
© copyright Young Eun Choi
2023
Mark